Höna 134

Zasnovana kot hiša dvojček. Zaradi spoja dveh enot je hiši onemogočeno, da bi na stiku bila okna, to nadomestijo velike steklene površine v bivalnem delu. V pritličju se razprostira bivalni del, na drugi strani hiše pa sta dve veliki spalnici in kopalnica z utility-jem. V nadstropju je glavna spalnica odprta v razkošno teraso.

Za več informacij ali informativno ponudbo izpolnite spletni obrazec za povpraševanje ali pa nam pišite na info@hona.si.

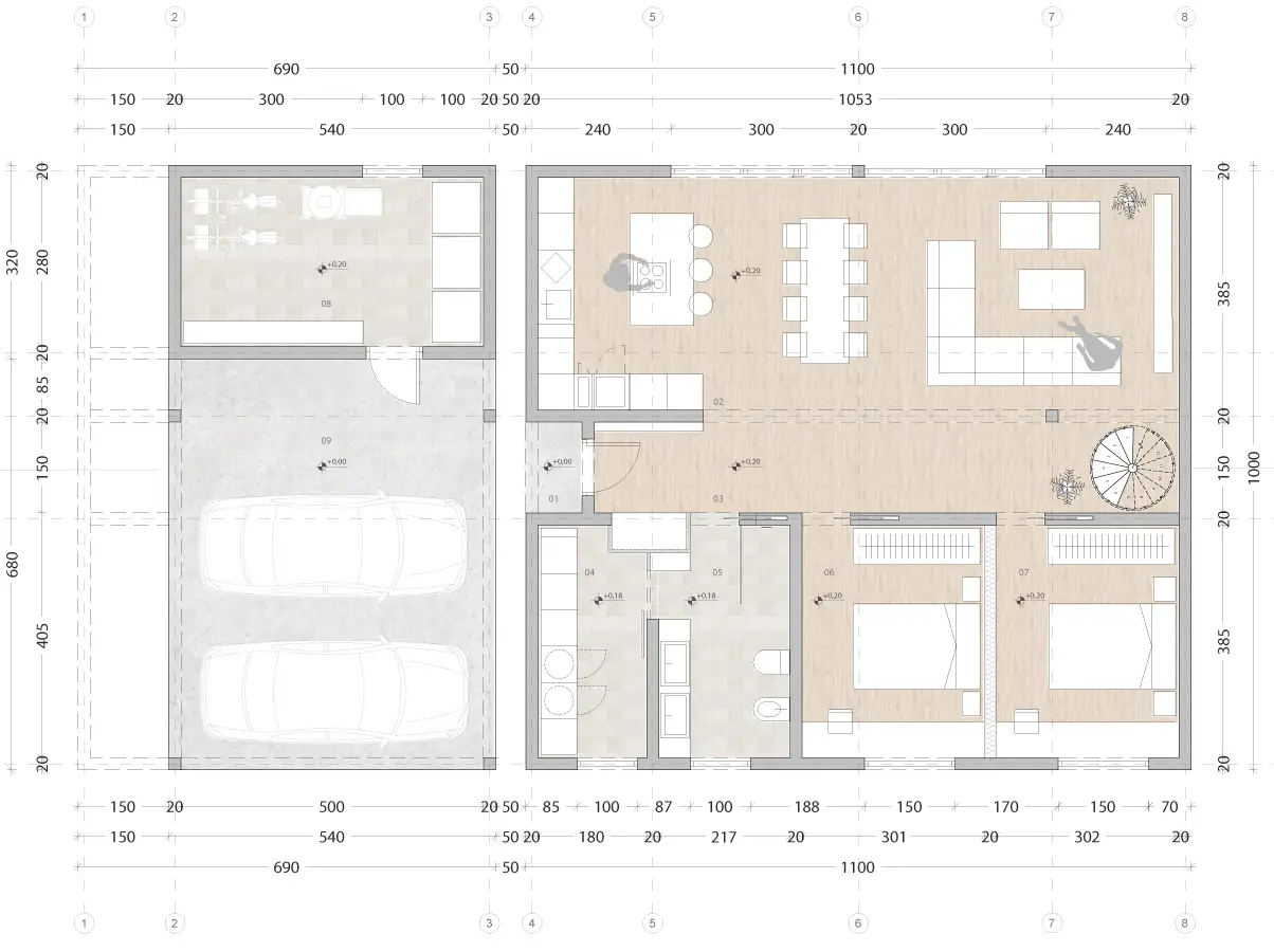
PROSTOR POVRŠINA
VHOD 31,39 m2
BIVALNI PROSTOR 42,38 m2
HODNIK S STOPNIŠČEM 14,50 m2
UTILITY 6,63 m2
KOPALNICA 8,14 m2
OTROŠKA SOBA 1 11,58 m2
OTROŠKA SOBA 2 11,62 m2
SPALNI PROSTOR 14,14 m2
KOPALNICA 4,94 m2
BRUTO POVRŠINA STANOVANJA 134,00 m2
LOPA 14,00 m2
NADSTREŠEK 36,72 m2
POKRITA TERASA 20,54m2
ODPRTA TERASA 61,20 m2
SKUPNA BRUTO POVRŠINA 274,00 m2

Trajnostni materiali in proizvodnja

Z uporabo okolju prijaznih materialov, barv, OSB plošč ipd. izdelamo celotno zasnovo po vaših željah

Spajanje enot

Možnost vertikalnega in horizontalnega spajanja večih enot po "Lego" sistemu.

Inovativnost vgrajena

Sledimo razvoju v panogi in po želji vgradimo inovativne sisteme stenskega oz. stropnega ogrevanja in prezračevanja

Družinsko podjetje

Proizvodnjo sedaj izvaja že tretja generacija družinskega podjetja. Izkušnje, tradicija in inovativnost prispevajo k odlični izkušnji.

Za več informacij ali informativno ponudbo izpolnite spletni obrazec za povpraševanje ali pa nam pišite na info@hona.si.

Povpraševanje

Za pridobitev dodatnih informacij vas vljudno vabimo, da izpolnite spodnji obrazec.
Informacije
Kontakt
HÖNA ENGINEERING D.O.O.