Höna 100
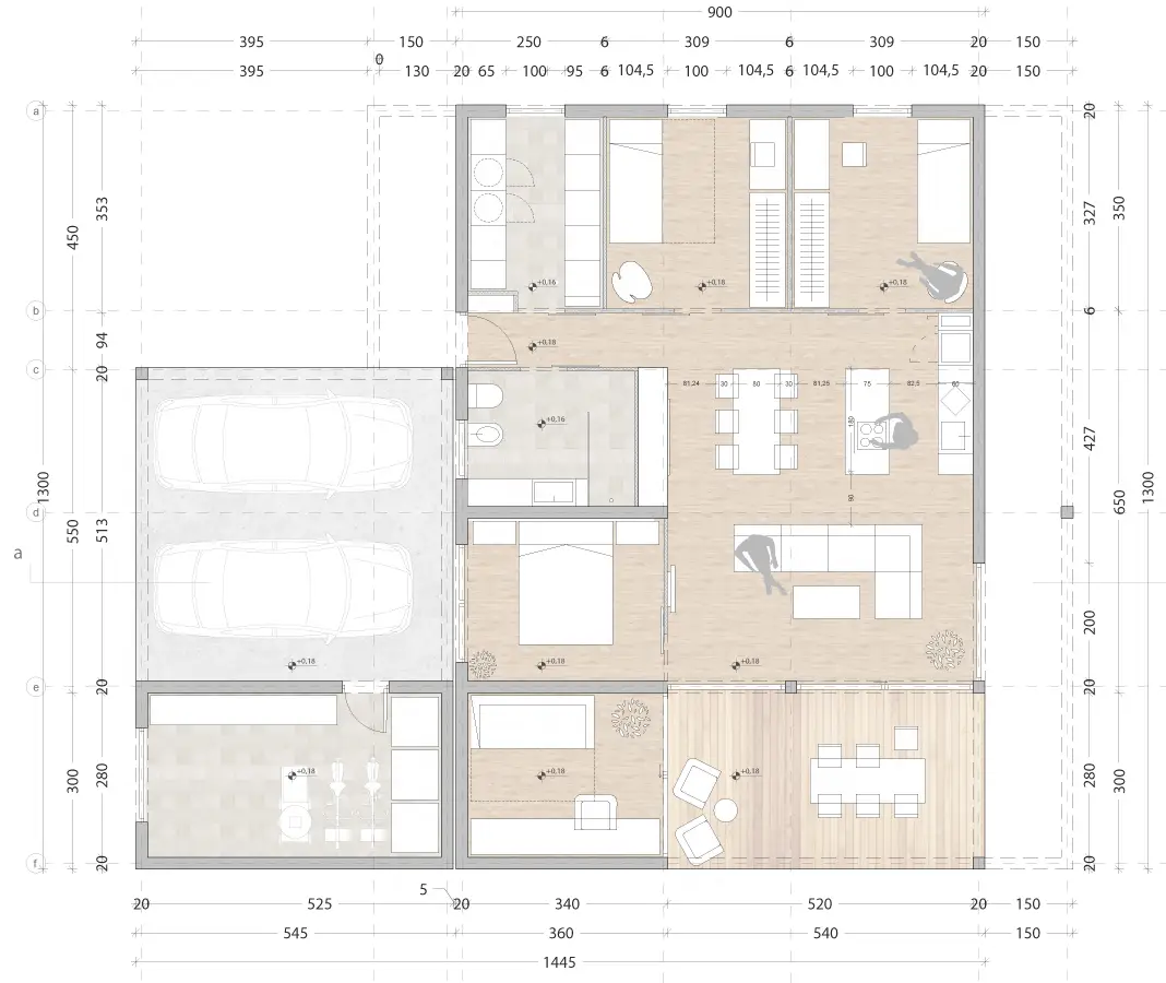
Pritlična hiša na 100 m² ponuja kvalitetno domovanje štiričlanski družini. Dve otroški sobi na eni in velika spalna suita na drugi strani, uokvirjajo velik in svetel dnevno bivalni del. Osrednji prostor se odpira na dve strani in tako poveže dogajanje v in zunaj hiše. V zaledju volumenskih mas, ki obdajajo dnevni prostor se ustvarijo intimni prostori vstran od neželenih pogledov. Dnevni volumen hiše se nadaljuje v pokrito teraso, kateri je s strani priključen pisarniški prostor.
Za več informacij ali informativno ponudbo izpolnite spletni obrazec za povpraševanje ali pa nam pišite na info@hona.si.
Trajnostni materiali in proizvodnja
Z uporabo okolju prijaznih materialov, barv, OSB plošč ipd. izdelamo celotno zasnovo po vaših željah
Spajanje enot
Možnost vertikalnega in horizontalnega spajanja večih enot po "Lego" sistemu.
Inovativnost vgrajena
Sledimo razvoju v panogi in po želji vgradimo inovativne sisteme stenskega oz. stropnega ogrevanja in prezračevanja
Družinsko podjetje
Proizvodnjo sedaj izvaja že tretja generacija družinskega podjetja. Izkušnje, tradicija in inovativnost prispevajo k odlični izkušnji.
Za več informacij ali informativno ponudbo izpolnite spletni obrazec za povpraševanje ali pa nam pišite na info@hona.si.

